Wamsler Holzherd Ambiente Line K 128F weiß
Vollherd im klassischem Design mit Sichtfenster fürs Feuer. Der 72 cm Holzherd in pflegeleichter Emallie lackiert mit massivem Edelstahlrahmen sowie geschliffener Stahlplatte (auch in Ceran Lieferbar ohne Anschlussmöglichkeit nach Oben!) verfügt über ein Großraumbratrohr mit Temperaturanzeige und einem geräumigen Brennraum.
Eine passende Abdeckhaube und Herdstange ist als Zubehör lieferbar.
Ausstattung des Wamsler Holzherd Ambiente Line K 128F weiß
- Edelstahl Herdrahmen
- Emalliert
- geschliffene Stahlplatte
- Verstellbarer Guss-Rost
- Brandschutzeinheiten als Sonderzubehör erhältlich
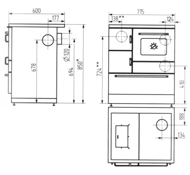
- Abgasanschlüsse wahlweise rechts oder links: seitl., hinten und oben
- Anschluss Ø 120 mm
- Dauerbrand
- Brennstoffe: Scheitholz, Holz-, und Braunkohlebriketts
SERIENMÄSSIGER LIEFERUMFANG
- Edelstahl Herdrahmen
- Guss-Rost
- Erfüllt die gesetzlichen Normen § 15 a B – VG, 2. Stufe BImSchV
Als Zubehör ist ein Abstandsverbinder lieferbar. Der Rauchgasanschluss ist wahlweise rechts oder links möglich.
Zum Lieferumfang des Wamsler Holzherd Ambiente Line K 128F weiss gehört eine Aufbau- und Bedienungsanleitung.















Rezensionen
Es gibt noch keine Rezensionen.